ARENZANO PINETA
VIA PUNTA DEL GABBIANO 24
Ci si innamora del luogo non appena si varca la soglia di casa...
...l'abbraccio silenzioso che si riceve guardandosi intorno, è ciò che fa desiderare la permanenza...
I colori del mare che sfumano all'orizzonte si incrociano con il volo dei gabbiani ed è proprio l'altezza che conclude l'ammirazione del luogo...
(dalla presentazione progetto Cosmic Up)
Un attico di 100 mq dalla vista mozzafiato, dotato di ingresso indipendente, due terrazzi di 70 mq, doppi servizi, cucinotto, ampia camera matrimoniale ed una zona ingresso che all’occorrenza può diventare zona per gli ospiti.
Foto eseguite dalla Consulente Immobiliare Cristina Canocchia - Arenzano (Ge)
Le foto non mentono, ogni lato di questo alloggio, è dotato di finestre di grandi dimensioni che, come ampi cornici, abbracciano perfettamente la maestosità del panorama che si gode da questo angolo di paradiso.
Allora su cosa e come intervenire?
Insieme a Veronica e Luca della Cosmic Up, ci siamo soffermati sulla tonalità dell'ambiente esistente che ci riportava ad una lussuosa e perfetta imbarcazione dai pregiati interni in legno.
L'arredo studiato su misura, le porte, il parquet, i bagni rifiniti finemente in marmo, così come il top della cucina bianco di Carrara, i mastodontici tendoni che, una volta aperti, sembravano vele spiegate
...nulla lasciato al caso...
Così abbiamo deciso per un fresco "relooking", creando un ambiente armonioso e tenue alla vista, facendolo "entrare" nel mare e tra il volo dei gabbiani (dalla presentazione progetto Cosmic Up).
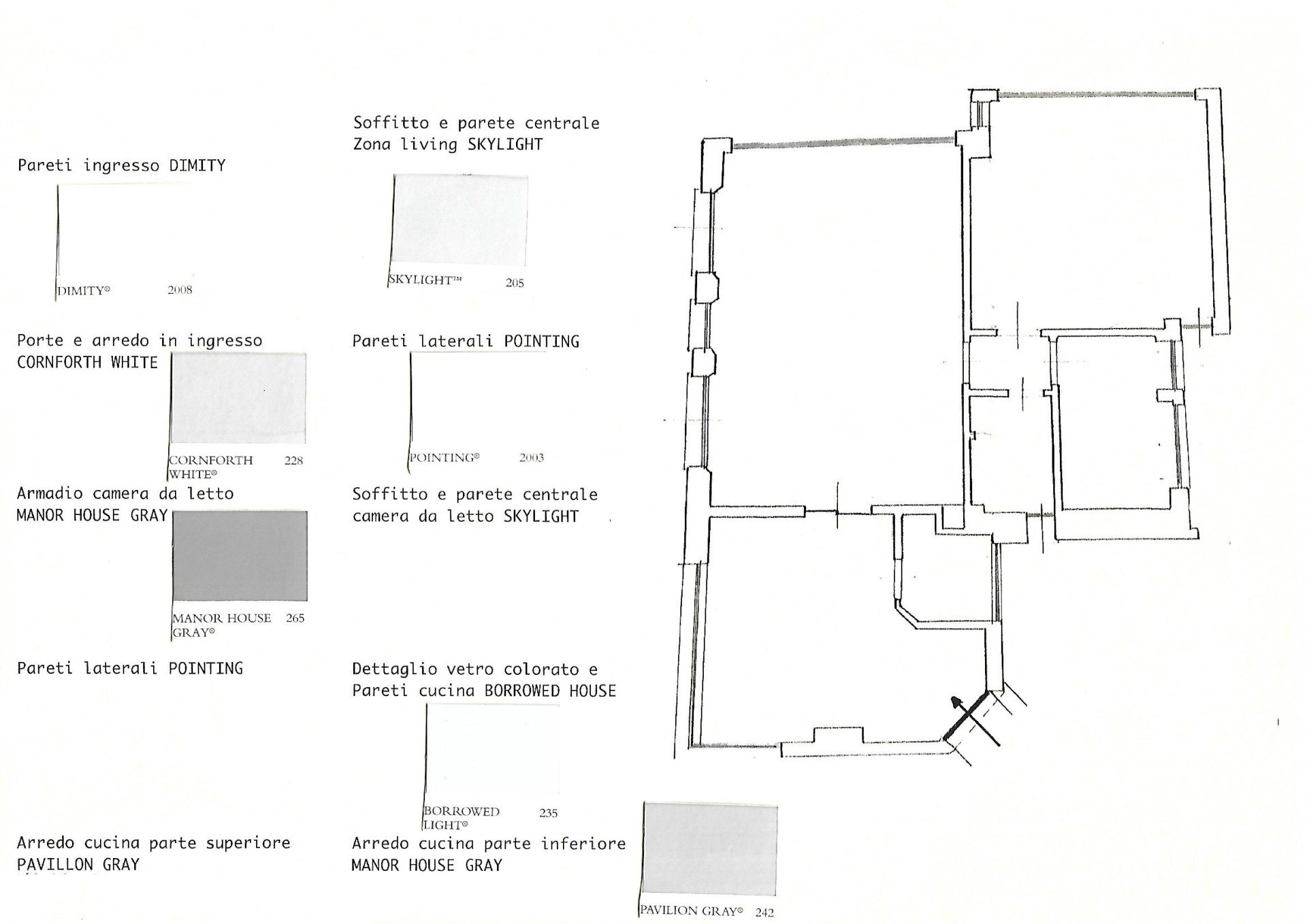
Siamo intervenuti, utilizzato diverse gradazioni di bianco, grigio e azzurro, tonalità calde e fredde che non dovevano imporsi l'una sull'altra. A soffitto, una tenue scia celeste porterà lo sguardo dall'ingresso della zona giorno all'affaccio sul mare della parete frontale. Lo stesso percorso visivo, spetterà a chi avrà accesso alla camera da letto.
La cucina, sarà caratterizza da un nuovo look bicolore ed un rivestimento di resina materica a pavimento.
Nel bagno padronale l'importante vasca in marmo è stata sostituita da una pratica doccia rivestita in resina.
RELOOKING ESEGUITO NELLA PRIMAVERA 2018
Il nostro "Network" per questo progetto:
-Progettazione Utopia2012 srl & Cosmic Up - Milano
come vivere su uno yacht
sempre con il sole in fronte e vento in poppa






































