MILANO VIA DELLA MOSCOVA 24
l'eleganza sofistica di una dimora milanese
a due passi dal Quadrilatero della Moda
Foto eseguite dallo Studio di architettura Ceron - Treviso
Per questa ristrutturazione milanese, ci siamo avvalsi della valida collaborazione dell' Arch. Davide Ceron di Treviso
e del suo omonimo studio.
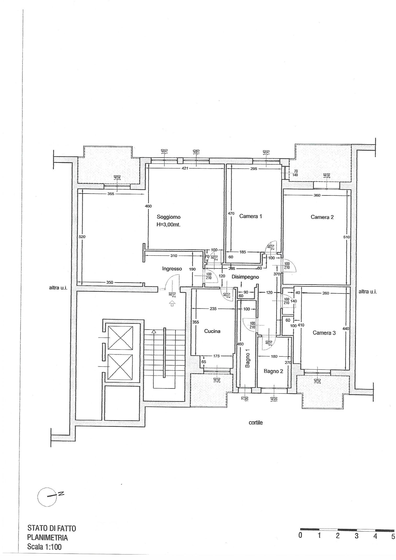
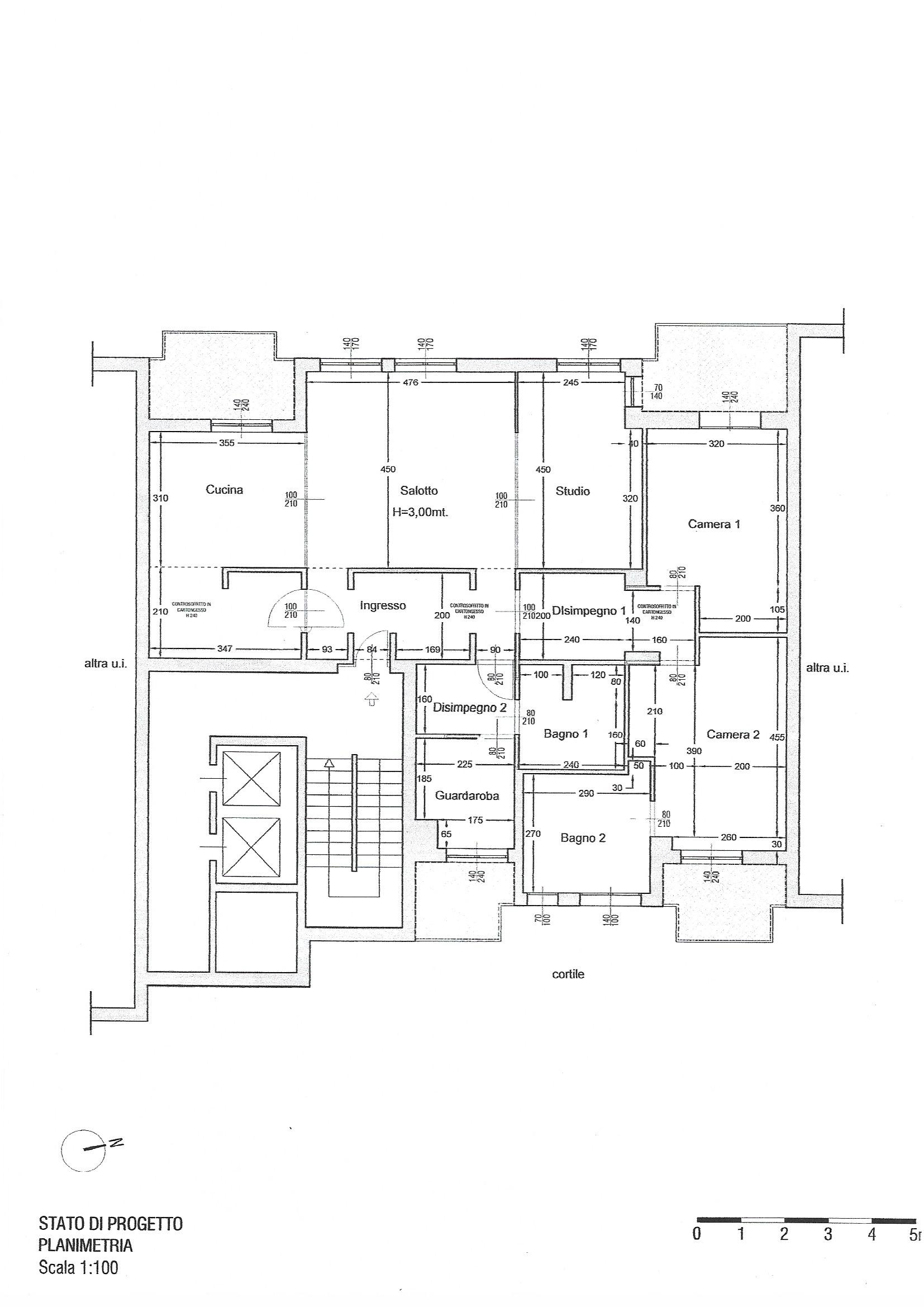
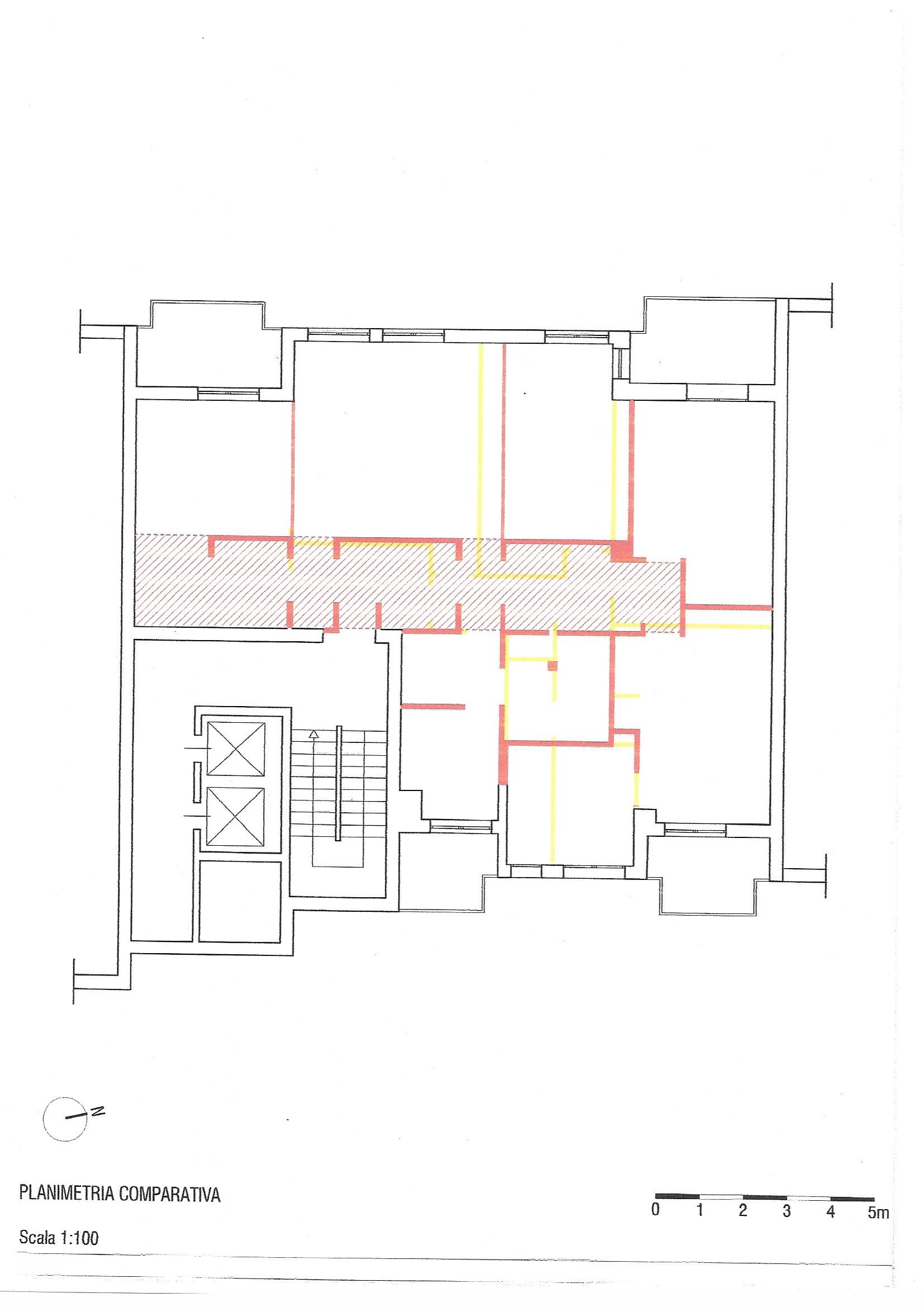
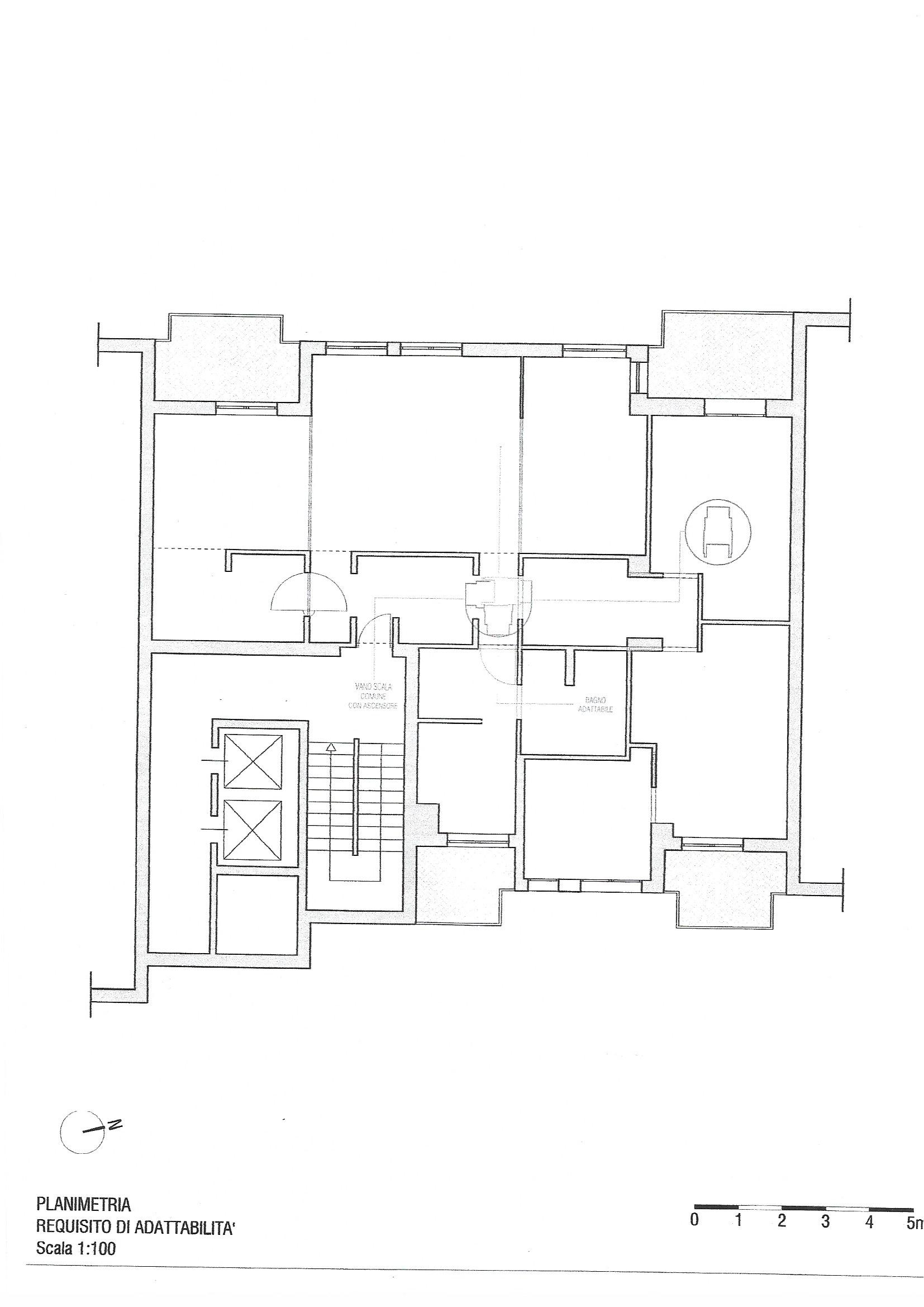
Stiamo parlando di un appartamento di 140 mq interni e 30 mq esterni suddivisi in 4 balconi.
Grazie all'assenza di vincoli strutturali, è stato possibile riprogettare ampi spazi armoniosi, luminosi, fluidi e al tempo stesso pratici, adeguati ad un alloggio metropolitano di questo millennio.
Planimetrie eseguite dallo Studio di architettura Ceron - Treviso
INIZIO LAVORI SETTEMBRE 2016 - FINE LAVORI ED ALLESTIMENTO LUGLIO 2017
Anche per questo lavoro, lo studio dei dettagli durante la fase di progettazione e durante i lavori, combinata con l'accurata scelta dei materiali e dell'arredamento, hanno fatto la differenza.
Render eseguiti dallo Studio di architettura Ceron - Treviso
Il nostro "Network" per questo progetto:
-Pratiche urbanistiche, progettazione e direzione lavori
Studio di architettura Ceron di D.Ceron - Treviso
-Impresa costruttrice
Ardeidi srl - Rapallo (Ge)
-Fornitura e posa pavimentazione in parquet
Cappellini Antichi Pavimenti - Milano
-Fornitura e posa pavimentazione e rivestimento in quarzite grey, top e lavabi in okite
Seveso Marmi snc - Cantù (Co)
-Rivestimenti artistici prodotto da
Giorgio Graesan & Friends
posa eseguita C.D. Imbiancature - Milano
-Fornitura arredamento Cosmic Up di L. Fasiello - Milano
-Fornitura arredamento
CN Arredamento Design srl - Carugo (Co)
-Fornitura arrdaemento
Executive Design sas - Lissone (Mb)
vintage in una delle zone glamour di Milano






















