ARENZANO PINETA
VIA DELLA COSTA 34
la Domus a picco sul mare
L'abbraccio del mare era potentissimo, fin dai primi gradini della piccola scalinata in ardesia che portava all'ingresso
Il suo profumo, mescolato a quello dei gelsomini e degli agrumi in fiore,
il suo suono, così rassicurante e talvolta fragoroso,
il costante passaggio dei gabbiani, non poteva far altro che farti pensare..."SORRIDI SEI AL MARE"...
L'unicità di questo luogo, proseguiva all'interno dell'alloggio, dove, appena varcata la soglia percepivi quanto il tempo
si fosse fermato e dimenticato dai proprietari...ma questo per noi aveva poca importanza...
La magia, avveniva quando si spalancavano le porte finestre lungo tutto il perimetro della casa. Madre natura ci accoglieva, in tutta la sua maestosità di luce, serenità, suoni e colori...ogni volta una tela dipinta in modo diverso, che incantava lasciando senza fiato...
La residenza aveva in serbo per noi altre sorprese.
Oltre all'appartamento di 100 mq, dalla loggia/balcone si arrivava ad un primo terrazzo che, tramite dei sentieri in pietra, ci dava la possibilità di accedere ad un secondo terrazzamento e ad un giardino di circa 200 mq, comprendente due ulteriori accessi privati che portavano dalla proprietà alla passeggiata chiamata "Via dell'Amore" e alla discesa mare.
Tutto ciò a picco sul mare, con vista mozzafiato a 180°, un albero di kumquat e delle sofferenti bouganville a fare da padroni.
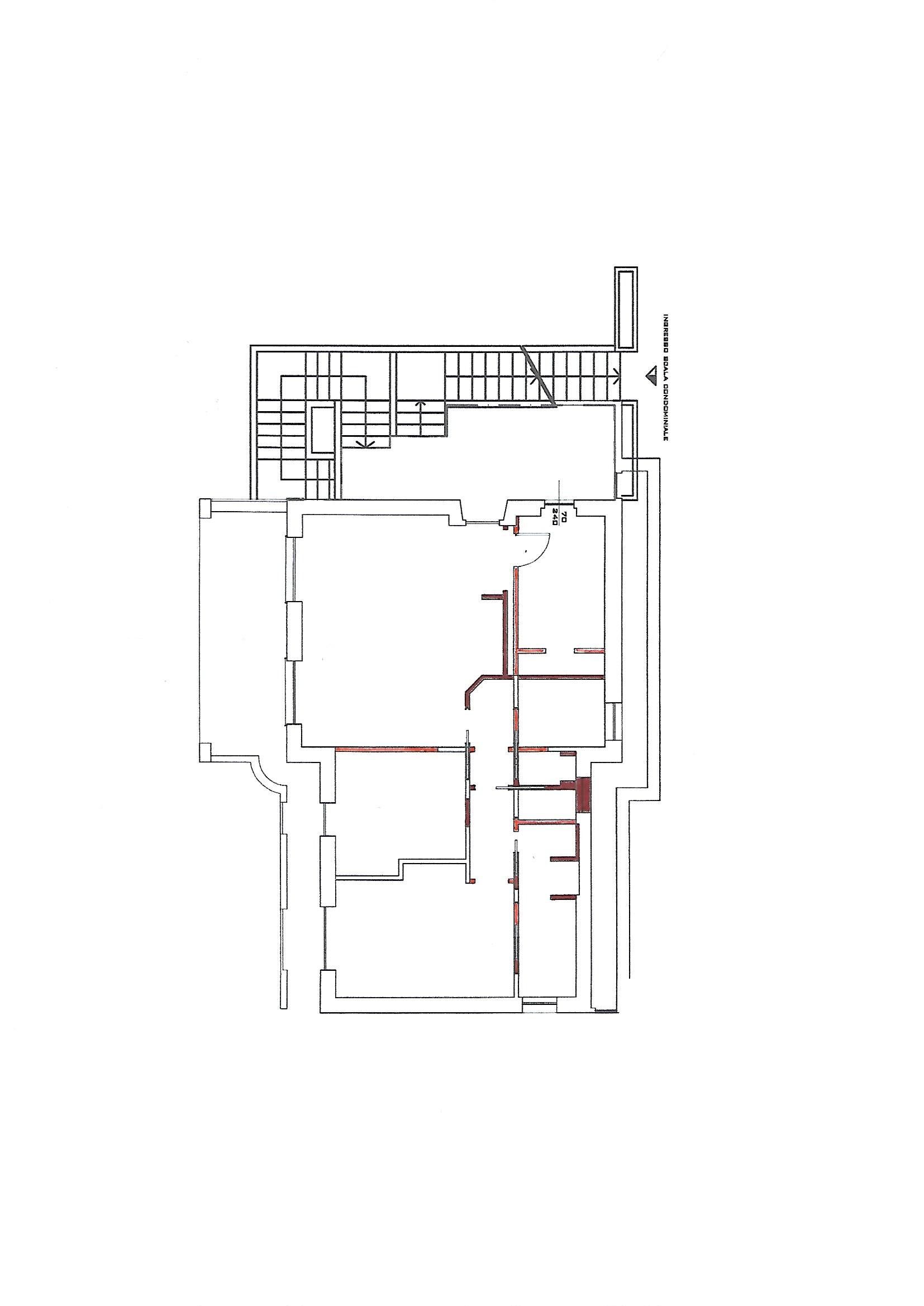
Planimetrie eseguite dallo Studio Tecnico Cipolla - Rapallo (Ge)
Per uno dei contesti più rinomati della Pineta di Arenzano e per uno dei nostri primi progetti ambiziosi, ci siamo avvalsi della competenza dello Studio Tecnico Cipolla di Rapallo
e di un'equipe di specialisti.
Per dare ulteriore prestigio alla residenza, la ristrutturazione prevedeva, oltre alla manutenzione straordinaria dell'alloggio, la totale riqualificazione della parte esterna e di un ampliamento volumetrico.
L’intervento, è stato oggetto di un lungo iter con l'autorizzazione Paesaggistica e l'approvazione da parte della Sovrintendenza per i Beni Ambientali ed Architettonici della Regione Liguria, che ci ha permesso di ottenere il rilascio dell’agibilità per tutta la ristrutturazione effettuata.
Per quanto riguarda l'alloggio, le modifiche apportate hanno reso più pratici ed adeguati gli spazi interni, ottenendo una sala, una cucina abitabile e camera matrimoniale, con l'affaccio diretto al mare, camera singola, 2 bagni finestrati ed una cabina armadio.
L'ampliamento, ci ha permesso di costruire una dependance di 20 mq, sottostante alla prima terrazza pergolata arrivata così a misurare 50 mq, un monolocale indipendente con un grande sguardo verso l'orizzonte blu, corredato di ogni comfort, compreso di un bagno finestrato con doccia e con accesso diretto alla seconda terrazza di 40 mq e al giardino.
Quest'ultimo, è stato riportato al suo vecchio splendore, piantumanto a nuovo, dotandolo d'impianto d'irrigazione, i suoi percorsi e muretti in pietra sono stati ripristinati in toto e l'accurato studio di un impianto d'illuminazione, ha fatto in modo di renderlo affascinante anche al calare del sole...
...La dependance...
Planimetrie e render eseguiti dallo Studio Tecnico Cipolla - Rapallo (Ge)
INIZIO LAVORI GENNAIO 2016 - FINE LAVORI ED ALLESTIMENTO DICEMBRE
Fondamentale, è stata la ricercata scelta dei materiali da posare.
Tra varie indecisioni e giri , siamo approdati, un po’ per caso, da
Ardesia Mangini a Cicagna (Ge).
Qualsiasi dubbio è stato rimosso, nel momento in cui abbiamo conosciuto Angela, titolare dell'azienda. La sua passione per questa meravigliosa pietra nostrana e l'amore che trasmette per il proprio lavoro, sono state altamente contagiose e non davano alternative.
Il materiale sgorga da cave di loro proprietà situate nei migliori filoni della zona e poi, l'arte con il quale viene sapientemente lavorato ogni singolo pezzo, rende unico qualsiasi cosa scaturisca da esso.
Con tanta disponibilità e professionalità, Angela ha saputo ascoltare quelle che erano le nostre esigenze, suggerendo idee e dando consigli e l'unicità del risultato è in queste foto.
Per la pavimentazione interna ed esterna dell'alloggio, abbiamo optato per un grande formato in nero graffite, mentre per la dependance e il terrazzamento la scelta è ricaduta sull'ardesia grigio oceano.
L'esclusività in questo lavoro, è stata nei rivestimenti realizzati per i bagni, grandi lastre dalla lavorazione molto particolare e di grande effetto, posate nelle docce e dietro i sanitari, i grandi piatti doccia dalle mille venature che risaltavano con lo scorrere dell'acqua e i lavabi, monoliti di ardesia lavorati a regola d'arte
..."l'arte sapiente di lavorare ancora a mano l'ardesia a spacco naturale"...
Il nostro "Network" per questo progetto:
-Pratiche urbanistiche, Progettazione e Direzione Lavori Studio Tecnico Geom. Cipolla - Rapallo (Ge)
-Impresa costruttrice Ardeidi srl - Rapallo (Ge)
-Pavimentazione e rivestimenti Ardesia Mangini - Cicagna (Ge)
-Arredamento CN Arredamento Design srl - Carugo (Co)
-Allestimento e manutenzione giardino Vivaio F.li Lumachi - Cogoleto (Ge)
c'era una volta una casa al mare rétro,
gli anni 60 si erano fermati lì,
assopiti e coccolati dall'infrangersi delle onde sugli scogli sottostanti













































