SAN MICHELE DI PAGANA
LUNGOMARE
FEDERICO DA PAGANA 1
La piccola Domus pieds dans l'eau
Bastava scendere i tre gradini e sedersi sugli scogli sotto casa ed ecco il mare nella sua calma piatta nelle prime ore di un mattino d'estate, poi il dondolio delle barche ormeggiate a poca distanza e come in una ninna nanna una leggera brezza ci cullava
Ci lasciamo alle spalle il minuto caruggio via Travello, due passi sulla marina e percorriamo il lungomare direzione della baia di Pomaro e da qui la prospettiva del mare cambia...
...la baia di Trelo vista da casa...
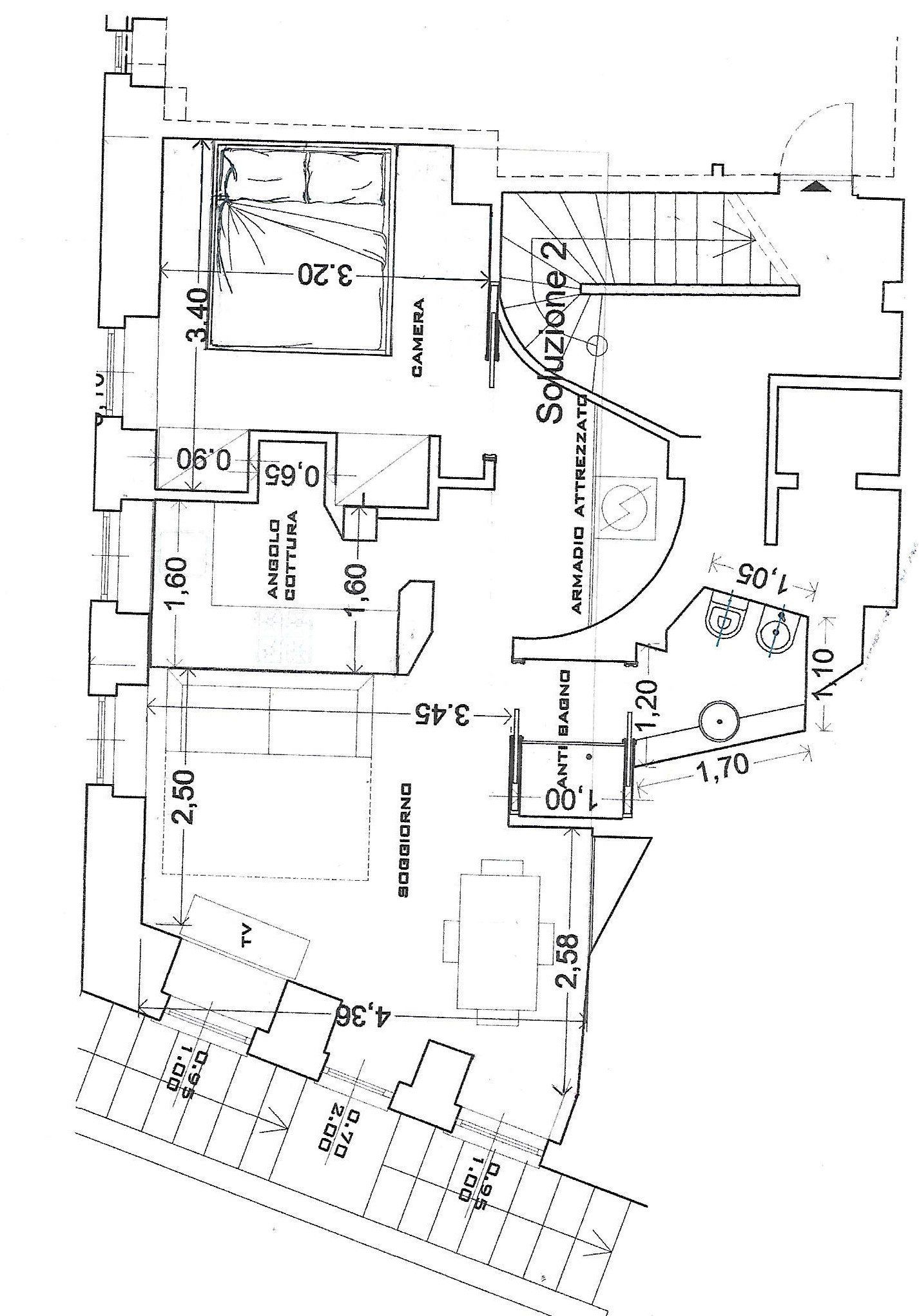
Sulla scalinata, che divide il lungomare dal primo tratto di marciapiede della S.P. di Portofino, c'é un piccola porta verde, come verdi sono le persiane delle finestre che si aprono come occhi nella pietra della facciata...occhi pronti a scrutare l'orizzonte...dietro la porta, l'ambiente che ci accoglie sono 50 mq di luminosità, ariosità a bordo mare.
INIZIO LAVORI NOVEMBRE - FINE LAVORI ED ALLESTIMENTO LUGLIO 2015
Anche per questo lavoro, la collaborazione del Geom. Cipolla e del suo team di architetti e tecnici
è stato fondamentale e grazie all'accurata rivisitazione degli spazi, si è dato il massimo comfort a questa una piccola casa di mare.
L'alloggio si apre direttamente sull'ampia zona giorno, formata dal living, l'angolo cottura dal bancone accessoriato ed bagno che, se pur piccolo e cieco, è una vera e deliziosa "comfort zone". A seguire, un comodo disimpegno, dall'armadiatura super attrezzata, che conduce alla camera matrimoniale.
Zona giorno e zona notte hanno un unico affaccio...quello verso il mare...sia della baia di Pomaro che quello della baia di Trelo.
Importante, è stata la realizzazione di un arredamento rigorosamente su misura, la ricercata cura nei colori, nei tessuti e nei complementi arredo.
La vera differenza, però, è stato decidere di posare la resina sia per il pavimento che per il rivestimento del minuto bagno.
Non volevamo però una resina qualunque, ricercavamo la magia di un pavimento artistico che vivesse di luce propria...quello vero ed originale di un grande artista
Giuseppe Portella....unico nel suo genere...
Grazie ai pigmenti argentati luminescenti, quando la luce del giorno ed ogni luce dell'appartamento si spegneva, la pavimentazione in resina della piccola Domus si accendeva e cominciava a danzare nel buio della notte...come risacca argentea del mare che si infrange sul bagnasciuga...
Se volete conoscere ed apprezzare questo incredibile artista, i suoi lavori e le sue opere d'arte, visionate questi siti:
www.giuseppeportella.it
www.puntozero.org
Il nostro "Network" per questo progetto:
-Pratiche urbanistiche, Progettazione e Direzione Lavori
Studio Tecnico Geom. Cipolla - Rapallo (Ge)
-Impresa costruttrice
Ardeidi srl - Rapallo (Ge)
-Creazioni di pavimentazione e rivestimenti in resina artistica Punto Zero di Giuseppe Portella - Novate Mi.se (Mi)
-Arredamento CN Arredamento Design srl - Carugo (Co)
-Tendaggi Officina Arredo di Sonia Alpi - Lavagna (Ge)
c'era una volta una piccola casa di pescatori
adagiata sugli scogli e cullata dal mare














