ROMA VIA CELIMONTANA 22
la vostra Domus a due passi dal Colosseo
Scoprire gioielli immobiliari in una grande città non è mai semplice
...ci vuole attitudine e pazienza...
Questo all'alloggio, dopo sostanziali interventi, ha acquistato il giusto fascino degno della Città Eterna
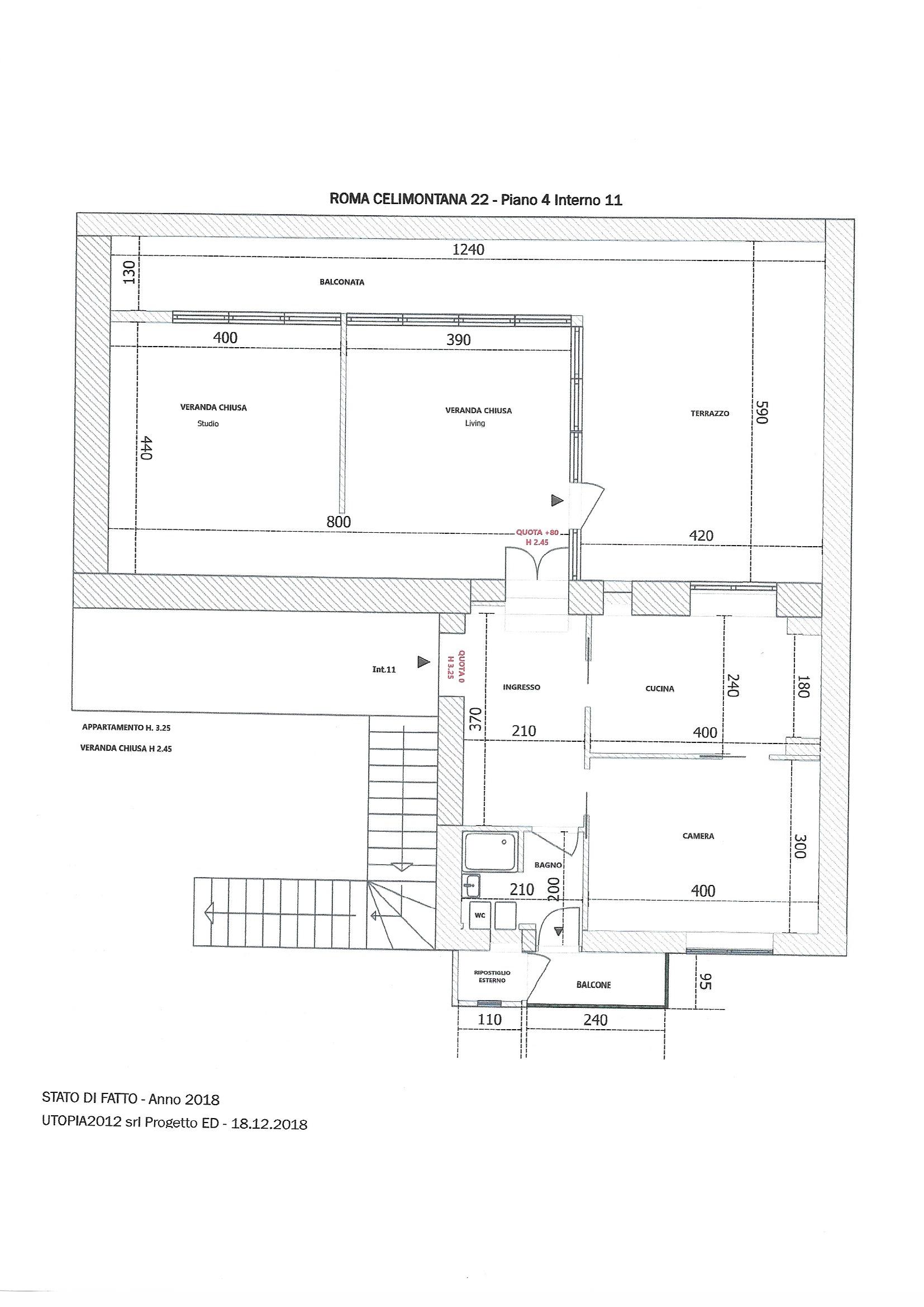
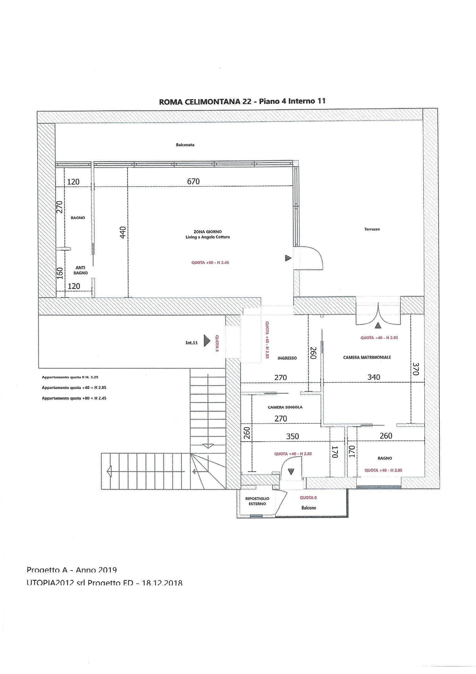
Con affacci sul Colosseo e su Colle Oppio l'appartamento di circa 90 mq, oltre terrazzo di 40 mq al piano e balcone, gode di una ottima luminosità.
Con il progetto, eseguito dalla nostra società, sono stati ridefiniti totalmente gli spazi interni, rendendoli più funzionale e confortevoli, adatti per una famiglia.
Come spesso accade, all'inizio è stato necessario procedere con alcune pratiche edilizie al fine di sanare alcune situazioni che vincolavano l'inizio lavori.
L'avvio al cantiere a maggio 2019.
Oltre alla riqualificazione completa degli impianti idraulici ed elettrici, la creazione di nuovi tramezzi, abbiamo previsto anche l'innalzamento del massetto originale per riequilibrare un dislivello esistente di 80 cm tra la veranda e il resto dell'appartamento.
FINE LAVORI ED ALLESTIMENTO DICEMBRE 2019
L'utilizzo di materiali innovativi e di pregio, la cura nei particolari sono il nostro punto di forza, il marchio che ci contraddistingue.
Il nostro "Network" per questo progetto:
-Progettazione
Utopia2012 srl - Milano
-Pratiche urbanistiche e Direzione Lavori eseguite dallo
Studio Ing. Geom. Rulli - Roma
-Impresa costruttrice
Nova Costruzioni srl - Roma
-Pavimentazione e rivestimenti in resina prodotto HD Surface
posata da
Nova Costruzioni srl - Roma
-Arredamento
Orsolini SpA e Bambù Art srl - Roma
-Tendaggi
La Tappezzeria di S. Biricocoli - Roma
-Restauro mobili eseguito da
Santangelo Restauro ed Antiquariato - Roma
c'era una volta
la vecchia dimora di un'artista


































