ARENZANO PINETA
LARGO SAN MARTINO 9
la nostra prima domus sopra il livello del mare
Ogni volta che si arrivava questo piccolo benvenuto era lì ad accoglierci, incastonato tra due nicchie in ardesia nera
...era l'alta e stretta finestra della sala...
da essa affiorava il mare blu, il cielo azzurro, il profumo dei pini marittimi, il cinguettio degli uccelli, il volo dei gabbiani ed il sole complice di questo dipinto
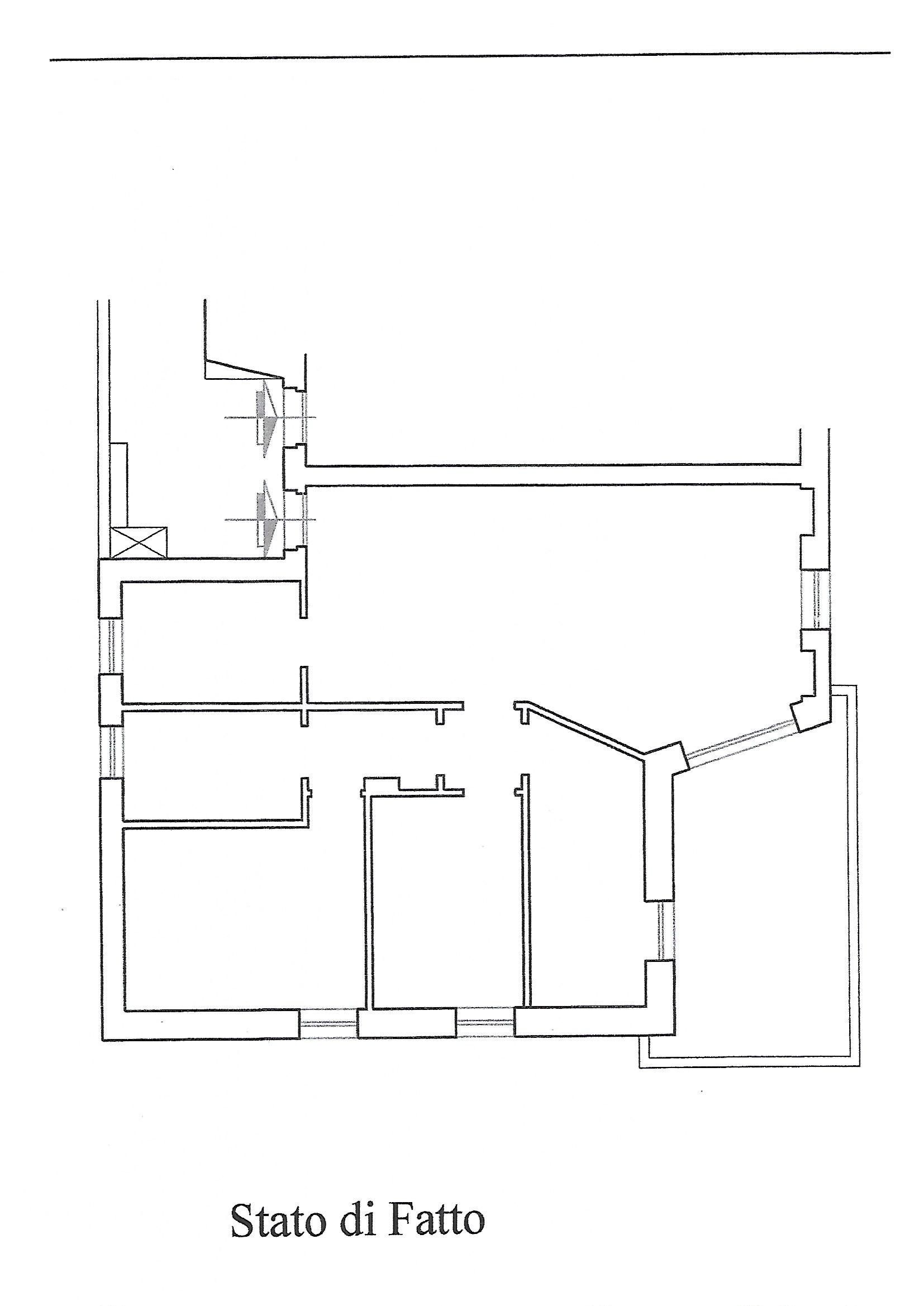
E' bastata una "vecchia" planimetria catastale, un foglio bianco A4, una matita, un righello ed un metro da cantiere per tracciare le linee di quella che è stata, in assoluto, la nostra prima ristrutturazione in Arenzano.
Con quelle stesse bozze, ci siamo recati dall'impresa leader in pineta l'Impresa di Costruzioni Ing. Walter Mastrazzo
e con loro, dopo aver reso più "tecnici" i nostri desideri, abbiamo dato inizio al nostro grande ed appassionante viaggio nel mondo delle ristrutturazioni residenziali in Pineta.
Abbiamo ristudiato lo spazio a disposizione di 90 mq, reinventando una nuova distribuzione interna con un ampio living ed un funzionale angolo cottura, due comodi bagni dotati entrambe di doccia, due ampie camere da letto, una singola e la matrimoniale, quest'ultima privilegiata dall'uscita sulla terrazza di 30 mq vista mare.
Con pochi accorgimenti, ma essenziali, abbiamo ottenuto un moderno alloggio completo di ogni comfort.
Grazie alla scelta di tonalità neutre, sia nei materiali edili che nell'arredo, abbiamo fatto in modo che l'appartamento ricominciasse a godere della sua naturale luminosità, permettendoci di giocare con punte di colore accese sia per i complementi d'arredo che per i tessuti.
Planimetrie eseguite dalll'Impresa di Costruzioni Mastrazzo - Arenzano (Ge)
I nostri primi bozzetti
AVVIO LAVORI FEBBRAIO 2011 - FINE CANTIERE ED ALLESTIMENTO OTTOBRE 2011
Il nostro "Network" per questo progetto:
-Progettazione
Utopia2012 srl - Milano
-Pratiche urbanistiche, Direzione Lavori e Impresa costruttrice Impresa di Costruzioni Ing. Walter Mastrazzo - Arenzano (Ge)
-Arredamento Comma
Arred'arte di Farina Raffaele - Paina di Giussano (Mb)
C'era una volta una casa bianca e nera
che volgeva il suo sguardo sonnacchioso verso il mare























